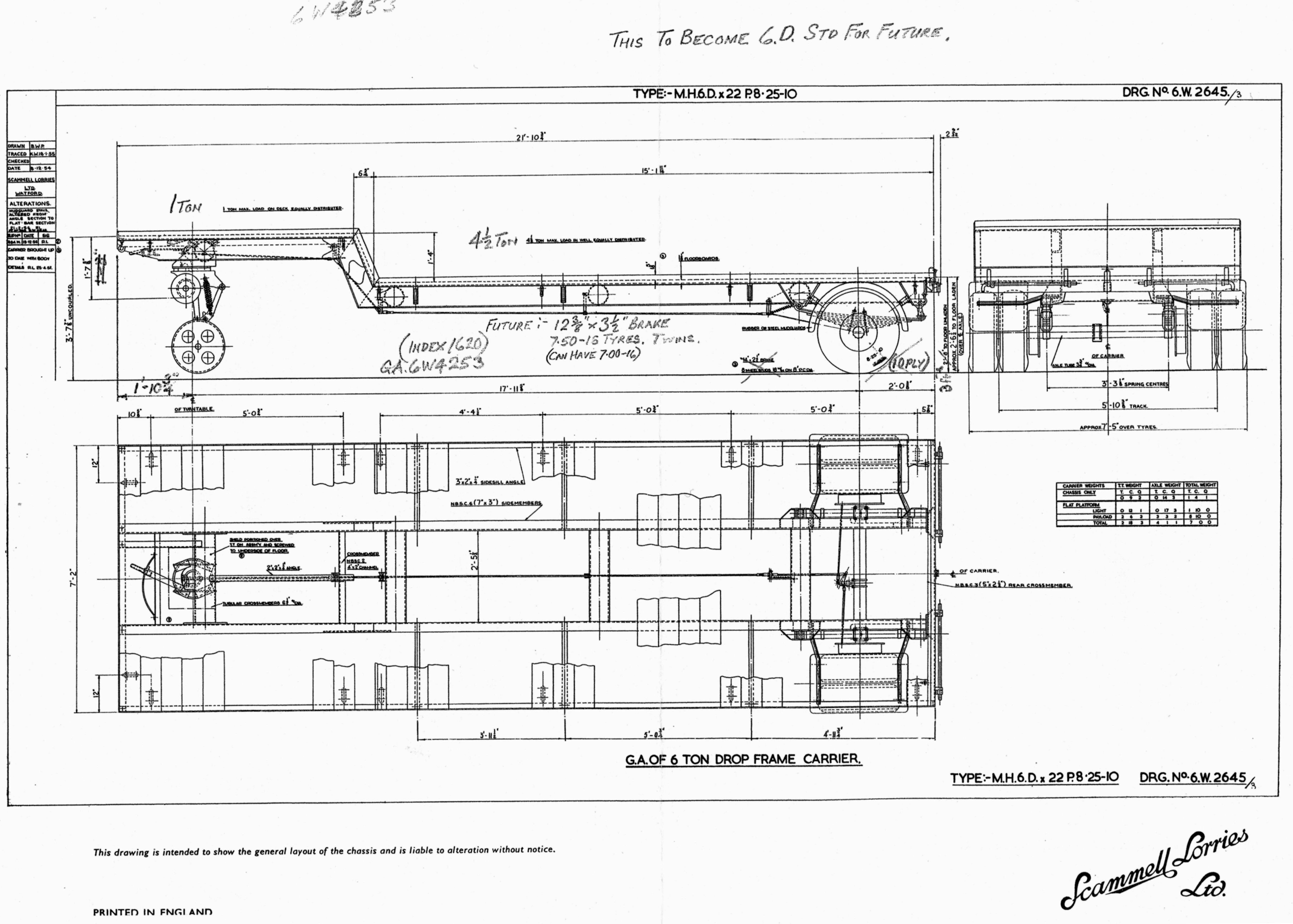
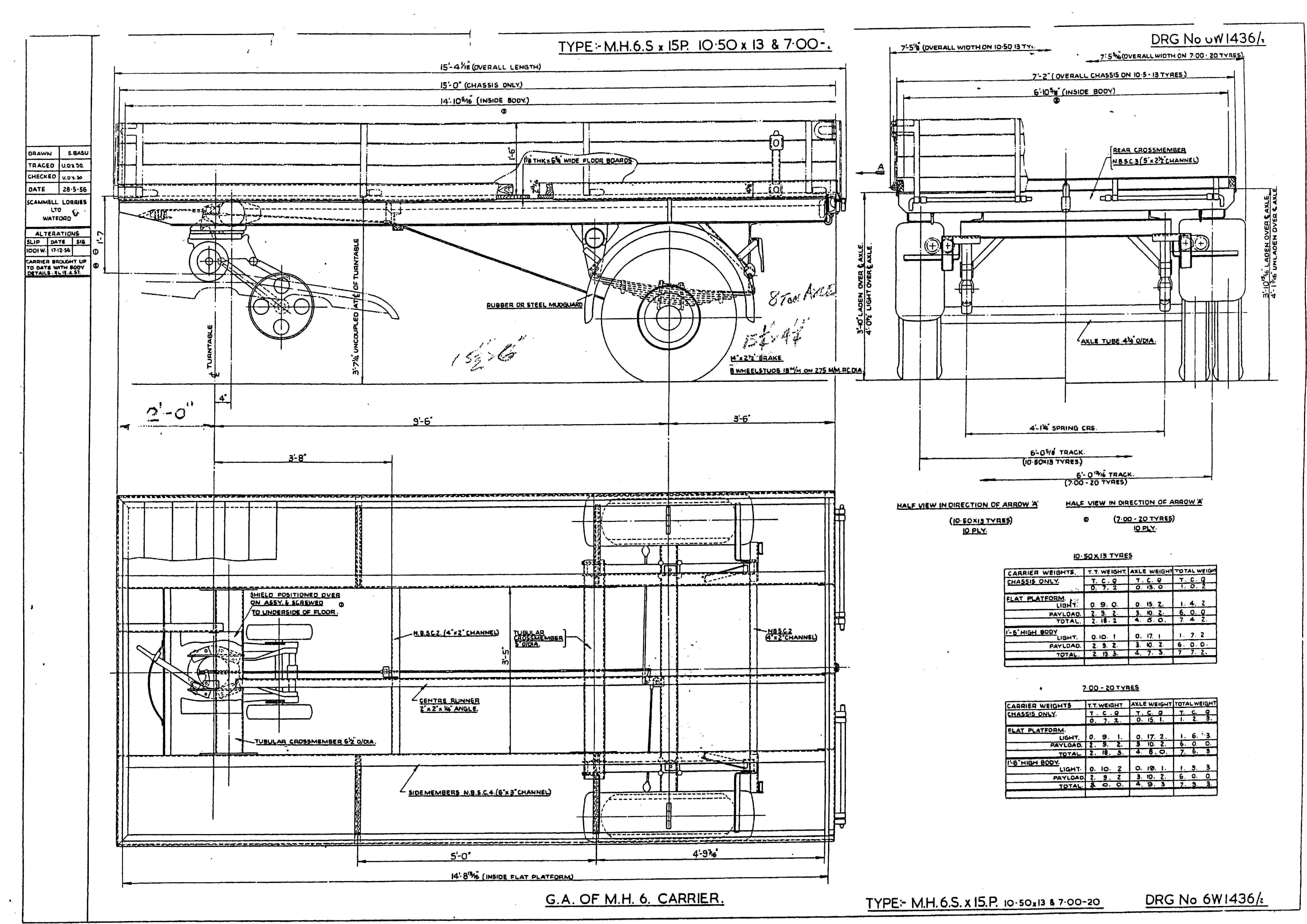
Scammell produced a range of standard trailer designs for use with vehicles fitted with their automatic coupler. The standard range was made up of Straight or Dropped frame trailers. The frame comprised of rolled steel channels braced with tubular cross members, the front portion was fitted with a turntable to which the automatic coupler was mounted, either a 3 Ton or 6 Ton. The rear axle had a steel tubular axle with alloy steel stubs mounted on semi-elliptic type springs with hubs running on taper roller bearings.

The standard trailers of either 15′ or 18′ could be equipped with a flat deck either with or without sides or a box van body. The same options applied to the 22′ drop frame trailers also.








Originally only 3T and 6T options were available for use with Scammell’s own Mechanical Horses but with other manufactures building coupler equipped vehicles heavier trailers for ever increasing weights started to be manufactured.



There was a bigger market for Scammell with their non-standard designs. Scammell gave companies the option to build trailers for their own individual needs and the variations were huge.
Tankers, Tippers, Dust Carts, Street Washers, Moving Floor Refuge Collectors and many many more.















